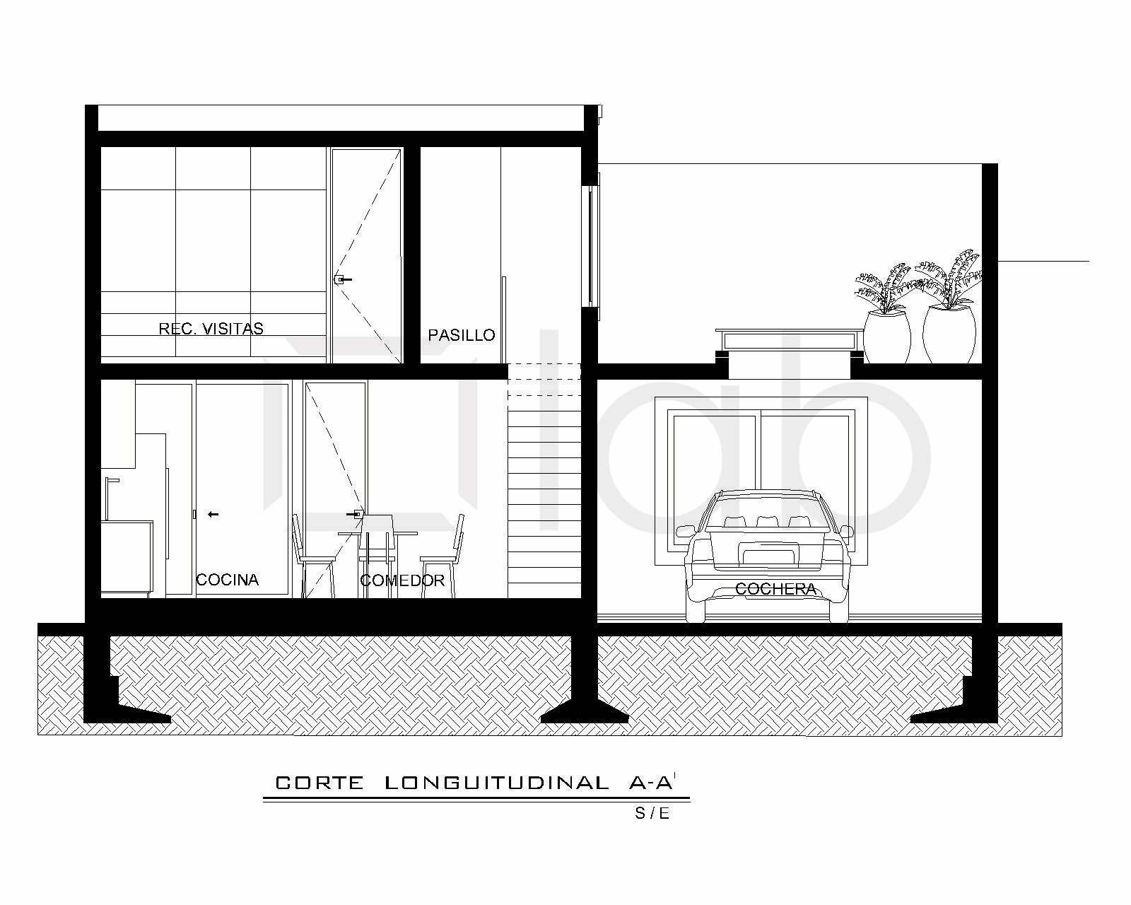
Casa_San Miguel de Allende 





Autor: lab arquitectura

Director de diseño: Arq. Israel Diaz

Purisima del Rincón Gto.


Casa San Miguel de Allende

En el corazón de Purísima del Rincón GTO, esta casa se levanta como un susurro del pasado que abraza el presente. Sus muros en tonos tierra respiran calidez, mientras un verde menta fresco se entrelaza con el ocre que enmarca el portón de clavos antiguos, sólido y noble, memoria de un oficio artesanal donde cada detalle tenía alma.

Las molduras de cantera de cemento enmarcan las ventanas como pinceladas que realzan la arquitectura colonial, y la herrería forjada, sencilla y clásica, deja entrever la delicadeza de lo eterno. Sobre los muros, los candiles antiguos encienden su luz titilante, evocando la danza del fuego, un ritual que conecta generaciones y convierte cada rincón en un refugio acogedor donde tradición y belleza conviven en armonía.


PROYECTO ARQUITECTONICO